Wycliffe Court, Hoole - £185,000
Features
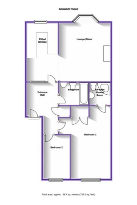
- 2 bedroom(s)
- 2 bathroom(s)
- 1 reception(s)
Description
This well-presented bay-fronted apartment offers modern living in a highly convenient setting. The accommodation comprises an entrance hallway leading to a bright and airy living room with a bay window, opening into a contemporary fitted kitchen. There are two well-proportioned bedrooms, including a master with en-suite shower room, and a separate guest bathroom.
The property benefits from gas central heating and double glazing throughout and is set within attractive, well-maintained communal grounds. Allocated parking is included.Perfect for a professional buyer or investor, Wycliffe Court offers a superb combination of style, comfort, and convenience?just a short stroll from Chester train station, the city's vibrant shops, restaurants, and the sought-after Hoole area.
]]>

















Click a photo to enlarge